Email:
info@whiteform.com
Telefon:
+09 232 271 54 22
TR
English
Türkçe
Ana Sayfa
Kurumsal+
Hakkımızda
Vizyon ve Misyonumuz
Fabrikamız
Bayilik Formu
İnsan Kaynakları Formu
Ürünler+
Lameller
Yan Kapaklar
Alt Parçalar
Yan ve Orta Raylar
Borular
Aksesuarlar
Kutular
Blog
Basında Biz
İletişim
Online İşlemler
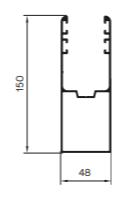
EYR.150 ND Alüminyum Ekstrüzyon Dikmeli Yan Ray
Anasayfa
/
Ürünler
/
Yan ve Orta Raylar
/
EYR.150 ND Alüminyum Ekstrüzyon Dikmeli Yan Ray
EYR.150 ND Alüminyum Ekstrüzyon Dikmeli Yan Ray
Ürün Özellikleri
Ürün Teknik Özellikleri;
Kullanılan lamel ölçüsü/ Usage slat size
95 mm
Bir metrenin ağırlığı / Weight per meter
2,935 kg
Standart üretim boyu / Standard manufacturing lenght
4 / 4,5 / 5 / 5,5 / 6 / 6,5 / 7 / 7,5 m.
Paket içeriği (adet) / Package contents (pcs)
1
GYR.100 ND GYR.40.80 ND Galvaniz Ray
EOR.100 ND Alüminyum Ekstrüzyon Orta Ray
EYR.054 ND Alüminyum Ekstrüzyon Dikmeli Yan Ray
EYR.058 ND Alüminyum Ekstrüzyon Dikmeli Yan Ray
EYR.090 ND Alüminyum Ekstrüzyon Dikmesiz Yan Ray
EYR.90 ND Alüminyum Eksrüzyon Dikmeli Yan Ray
GYR.100 ND GYR.40.80 ND Galvaniz Ray
EYR.150 ND Alüminyum Ekstrüzyon Dikmeli Yan Ray
İsim Soyisim
E-posta Adresi
Mesaj
Gönder